Planungen für Gastronomie / gewerbliche Kälte und Innenausbau

Alters- und Pflegeheime

Freitagshaus

Altersheim, Winterthur

Zahlen & Fakten

Leistungen axet Fachplanungen Gastronomie
Planungsbereiche

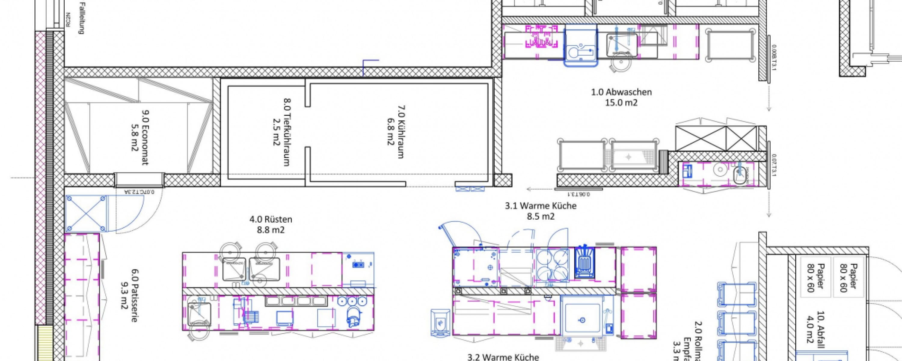
Produktionsküche

Projektleitung Rafael Weiler
Planungsteam Schneider Gmür Architekten AG
Kunde Stiftung Altersheim St. Urban
Projektdauer 2015 bis 2018
Investitionssumme CHF 180 000.–
Mahlzeiten 60 Essen pro Mahlzeit
Fläche ca. 85 m2




Ausgangslage

Als Antwort auf die steigende Nachfrage nach Heimplätzen für Menschen mit Demenz wurde die Aussenstelle Freitagshaus des Altersheims St. Urban durch einen Neubau erweitert, welcher in zwei Wohngruppen 24 Bewohnern ein betreutes Zuhause bietet.

Herausforderungen

Im Interesse einer effizienten Gastronomie musste die Produktionsküche des Neubaus in der Lage sein, bei Bedarf die Bewohner des bestehenden Wohnheims beliefern zu können. Ebenso war die Küche für die Auslieferung der Menus an die Gemeinschaftsbereiche der Wohngruppe zu optimieren.

Möchten Sie in einem unverbindlichen Gespräch Möglichkeiten für Ihr anstehendes Projekt besprechen?

Weitere Referenzen

Mitarbeiter Gastronomie

JVA Pöschwies

Mehr lesen

Öffentliche Gastronomie

Globus Bellevue Zürich

Mehr lesen

Öffentliche Gastronomie

Latte Stories - Specialty Coffee & Brunch

Mehr lesen